


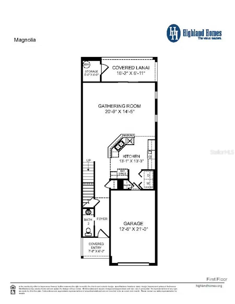
Under contract-accepting backup offers. Under Construction. 2-story new construction end-unit townhome with 1,884 square feet, 3 bedrooms, a 1-car garage, and a screened lanai, located in the brand-new Terrace at Walden Lake community offering natural and park amenities. Downstairs, enjoy an open layout and a gourmet kitchen with quartz countertops, shaker-style cabinets, Samsung stainless steel appliances, a pantry, and a butterfly island. The spacious gathering room opens to your private screened lanai. The entire lower level and upstairs baths are finished with luxury vinyl plank flooring, with stain-resistant carpet in the bedrooms. Upstairs, you'll find three spacious bedrooms including your owner's suite complete with two walk-in wardrobes and a private en-suite bath with dual vanities, a tiled shower, and a closeted toilet. Additional features for your convenience include a half bath downstairs, Jack-and-Jill upstairs bath for the secondary bedrooms, custom-fit window blinds throughout, a Samsung full-sized washer and dryer, energy-efficient insulation and windows, and a full builder warranty.
| 2 months ago | Listing updated with changes from the MLS® | |
| 2 months ago | Status changed to Pending | |
| 3 months ago | Price changed to $289,900 | |
| 5 months ago | Listing first seen on site |
Did you know? You can invite friends and family to your search. They can join your search, rate and discuss listings with you.